CAME STILE 110 (001PSMM110E-02) Турникет-трипод с автоматической антипаникой
до 48 чел/м, IP54, автоматическая Антипаника
Для оптовиков и инсталляторов действуют специальные типы цен. Условия обговариваются с нашими менеджерами.
Турникет-трипод электромеханический STILE 110 с системой «Антипаника»
Турникет-трипод STILE 110 с системой «Антипаника» — это усовершенствованная модель, разработанная для объектов, где на первый план выходят требования безопасности и возможность экстренной эвакуации. Электромеханический привод и корпус из нержавеющей стали AISI 304 обеспечивают долговечность и надежность, а интегрированная функция автоматического сброса штанг гарантирует мгновенное освобождение прохода при срабатывании пожарной сигнализации или отключении питания. Решение идеально подходит для мест массового скопления людей.
Ключевые преимущества модели
- Повышенный уровень безопасности: Автоматическая система «Антипаника» обеспечивает мгновенный подъем штанг для беспрепятственной эвакуации.
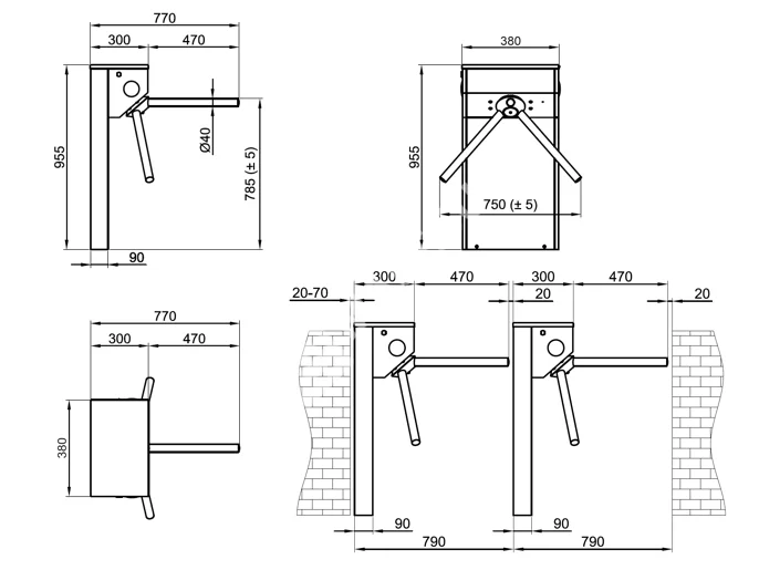
- Надежная и прочная конструкция: Использование нержавеющей стали AISI 304 и степень защиты IP54 гарантируют долгий срок службы в интенсивных условиях.
- Высокая скорость обработки потока: Пропускная способность до 48 человек в минуту позволяет эффективно работать в часы пик.
- Упрощенный монтаж и запуск: Наличие встроенного блока питания и готовой платы управления сокращает время установки.
- Широкая совместимость: Интеграция с любыми системами СКУД через стандартный интерфейс «сухого контакта».
- Расширенная гарантия: Гарантия 3 года от производителя CAME OZAK.
Функционал и возможности
- Автоматическая система «Антипаника»: Мгновенный подъем и фиксация трех штанг по внешнему сигналу тревоги (пожарная сигнализация) или при аварийном отключении питания.
- Двунаправленное управление доступом: Гибкое управление проходом на вход и выход с возможностью настройки отдельных режимов.
- Светодиодная индикация статуса: Визуальные световые сигналы информируют о доступности направления прохода.
- Аварийный режим работы: Автоматический переход в безопасное (открытое) состояние при потере сетевого напряжения.
- Централизованное управление: Возможность интеграции в комплексную систему безопасности объекта для централизованного управления всеми точками доступа.
- Программируемые настройки: Конфигурация времени задержки срабатывания и других рабочих параметров.
Область применения
- Торговые и развлекательные комплексы: ТРЦ, кинотеатры, фуд-корты с высоким потоком посетителей.
- Спортивные и зрелищные сооружения: Стадионы, концертные залы, ледовые дворцы.
- Транспортная инфраструктура: Станции метро, железнодорожные вокзалы, аэропорты.
- Образовательные и административные учреждения: Университеты, колледжи, государственные учреждения.
- Промышленные предприятия: Объекты с повышенными требованиями к промышленной безопасности и эвакуации.
Комплектация
- Турникет-трипод STILE 110 в сборе с электромеханическим приводом и системой «Антипаника».
- Комплект крепежных элементов для установки.
- Ключ для аварийного ручного управления.
- Техническая документация (паспорт, руководство по монтажу).
Турникет-трипод STILE 110 с системой «Антипаника» — это надежное и безопасное решение для контроля доступа в местах массового скопления людей. Чтобы купить данную модель в Кемерове, оформите заказ на сайте или свяжитесь с нашими специалистами для консультации.
Примечание: Для активации функции «Антипаника» от пожарной сигнализации требуется корректное подключение и настройка квалифицированным специалистом.Производитель может изменять характеристики, внешний вид и комплектацию товара без уведомления продавца. Актуальную информацию уточняйте на официальном сайте производителя.
Технические характеристики STILE 110 (с Антипаникой)
Производитель может изменять характеристики, внешний вид и комплектацию товара без уведомления продавца. Актуальную информацию уточняйте на официальном сайте производителя.
